Котел КВм 2.5 с ЗП РПК

В наличии
Только безнал
Можно в лизинг
Версия для печати
Вид топки: Механическая, РПК
Максимальная тепловая мощность: 2.5 МВт
Топливо: Твердое, Уголь
Отапливаемая площадь: от 19300 до 27500 м²
Все характеристики

Водогрейный твердотопливный котел HeatExpert КВм-2,5 с забрасывателем ЗП и поворотными колосниками РПК мощностью 2,5 МВт (2500 кВт) на каменном и буром угле, с механическим забросом топлива и золошлакоудалением.

Подробное описание

Преимущества полумеханического котла КВм‑2,5 МВт с топкой ЗП‑РПК

Механизированная подача угля – без тяжёлого ручного труда.

Забрасыватель ЗП‑400 автоматически подаёт топливо из бункера на колосниковую решётку. Регулировка подачи – изменением интервала циклов.

Поворотные колосники – лёгкое удаление шлака.

Очистка топки происходит поворотом секций колосников. Шлак сбрасывается в канал шлакоудаления. Возможен передний, средний или задний выгруз – под вашу котельную.

Развитая конвективная часть (двухходовая) – экономайзер не требуется.

Шахматные пучки труб, принцип противотока. Глубокое охлаждение газов до 180–200 °С, КПД >80%. Высокая эффективность исключает установку отдельного экономайзера – меньше затрат и сопротивления.

Турбулентный поток теплоносителя.

Турбулентный высокоскоростной режим теплоносителя препятствует выпадению взвешенных частиц и образованию накипи. Многоходовая гидравлика исключает образование застойных зон и локальный перегрева трубной системы.

Газоплотная топка – безопасность и экономия.

Плавниковое оребрение труб исключает присосы холодного воздуха и выбивание дыма в котельный зал. Стабильное горение = меньше топлива и спокойствие персонала.

Адаптация под любой проект.

Возможно зеркальное исполнение входных патрубков, расположение поворотных колосников впереди/в центре/в задней части топочной решетки, нестандартные патрубки, установка дополнительных дверок, изготовление из стали 09Г2С или бесшовной трубы ГОСТ 8732. Мы подстроим котел под ваши технические условия.

Гарантия 12 месяцев. Расчетный срок службы — 10 лет.

Цена с НДС 2 600 000 ₽
Уточнить цену с доставкой до вашего города
Оглавление
Характеристики
Описание
Комплект поставки
Потребуются
Схема подключения
Сертификаты
Подбор котла

Технические характеристики котла КВм 2.5 с ЗП РПК

Подобрать другую модель по вашим ТХ
Бренд: HeatExpert
Тип: Котел КВм
Марка: Котел HeatExpert 2.5 с ЗП РПК
Вид: Водогрейный
Тип отопительного котла: Твердотопливный
Вид топки: Механическая, РПК
Максимальная тепловая мощность: 2.5 МВт
Максимальная тепловая мощность: 2500 кВт
Максимальная тепловая мощность: 2.16 Гкал
Диапазон регулирования мощности: 40-100 %
Диапазон регулирования мощности: 1000-2500 кВт
Топливо: Твердое, Уголь
Низшая теплота сгорания проектного топлива: 5230 кКал/кг
Фракционный состав топлива: Содержание мелочи (0-6 мм) не более 50%; максимальный размер куска не более 100 мм
Влажность топлива: 30 %
КПД котла на УГЛЕ, не менее: 80 %
Расход УГЛЯ при максимальной нагрузке котла: 513 кг/ч
Расход УГЛЯ среднечасовой за отопительный сезон: 293 кг/ч
Расход условного топлива при максимальной нагрузке котла: 383 кг/ч
Максимальная температура воды на выходе из котла: 115 °C
Минимальная температура воды на входе в котел: 55 °C
Разница температуры воды на входе и выходе из котла, ∆t: 25 °C
Давление теплоносителя: 0.3-0.6 (3-6) МПа (кгс/см²)
Номинальный расход теплоносителя: 86 м³/ч
Расход теплоносителя через котел min-max: 65-108 м³/ч
Водяной объем котла: 2500 л
Гидравлическое сопротивление при номинальном расходе, не более: 0.07 (0.7) МПа (кгс/cм²)
Аэродинамическое сопротивление: 230 (23) Па (мм. вод. ст.)
Разряжение в топочной камере: 20-40 (2-4) Па (мм. вод. ст.)
Размер топочной камеры: длина*ширина*высота: 2085х1510х1890 мм
Активная площадь решетки горения: 3.1 м²
Объем топочной камеры: 6 м³
Тяга: Уравновешенная
Объем уходящих газов: 10300 м³/ч
Температура уходящих газов, не более: 220 °C
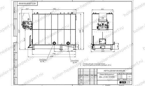
Присоединительные размеры по водяному тракту: 150 Ду
Присоединительные размеры газохода уходящих газов, ширина*высота / сечение: 1200х320 / 0.38 мм/м²
Габаритные размеры корпуса котла (без дренажей, амбразуры, топочного устройства, входа выхода), длина*ширина*высота: 3470х1790х2485 мм
Габаритные размеры котла, длина*ширина*высота: 3780х2080х2600 мм
Масса: 5100 кг
Конструкция котла: Водотрубная
Количество контуров теплоносителя: Одноконтурный
Количество ходов дымовых газов: Трехходовой
Размещение: Напольный
Тип камеры сгорания: Открытый
Управление: Электронное
Принцип работы твердотопливного котла: Классический
Энергонезависимый: Нет
Тип питания: Трехфазное
Встроенный циркуляционный насос: Нет
Встроенный расширительный бак: Нет
Энергоэффективность: Высокая
Срок службы: 10 лет
Страна производства: Россия
Завод изготовитель: ООО Котельный завод "РЭП"
Регистрационный номер Минпромторга: 1
Особенность: Механический заброс и удобный выгруз шлака
Отапливаемая площадь: от 19300 до 27500 м²
Отапливаемый объем: от 57300 до 82300 м³

Водогрейный полумеханический котел КВм-2,5 (2500 кВт) с топкой ЗП-РПК для каменного и бурого угля

1. Назначение и область применения котла КВм-2,5 с забрасывателем и топкой ЗП-РПК

Котел водогрейный КВм-2,5 (2500 кВт) с топкой ЗП-РПК предназначен для получения горячей воды с температурой до 115 °С и рабочим давлением 0,3–0,6 МПа (3,0–6,0 кгс/см²) в системах отопления, вентиляции и горячего водоснабжения крупных производственных, коммунальных и социальных объектов. Оборудование рассчитано на сжигание каменного и бурого угля.

Полумеханический котел с забрасывателем ЗП и поворотной решеткой РПК применяется в механизированных котельных с системой топливоподачи (скребковый или ленточный транспортер) и шлакозолоудаления. Используется для теплоснабжения промышленных предприятий, жилых кварталов, административных зданий, школ, больниц.

Базовые параметры котла полумеханического КВм-2,5 с топкой ЗП-РПК:

  • Тепловая мощность: 2,5 МВт (2500 кВт).
  • Отапливаемая площадь (ориентировочно): до 21 900 м² (зависит от теплопотерь).
  • Топливо: каменный и бурый уголь (фракция до 40 мм, влажность до 40%, зольность до 35%).
  • Тип загрузки: механизированная (забрасыватель ЗП-400).
  • Тип топки: ЗП-РПК (забрасыватель пневмомеханический + решетка с поворотными колосниками).
  • Конструкция: стальной, водотрубный, горизонтальный.

2. Конструктивные особенности и характеристики котла механического КВм-2,5-115 ЗП-РПК

Котел выполнен двухблочным: котельный блок (сварная конструкция из труб сталь 20, газоплотная топочная камера, конвективная часть) и топка ЗП-РПК (забрасыватель + колосниковая решётка с поворотными секциями).

2.1. Котельный блок

  • Газоплотная топочная камера: выполнена из труб сталь 20 с плавниковым оребрением (межтрубное пространство заварено). Полностью исключены присосы воздуха и прорыв дыма в котельный зал.
  • Конвективная часть (двухходовая): пакеты труб в шахматном порядке для интенсивного теплосъема. Принцип противотока – глубокое охлаждение дымовых газов до 180–200 °С, КПД более 80%.
  • Обмуровка: облегчённая из плит ПТЭ (базальтовое волокно) с обшивкой из стального листа. 
  • Люки для очистки: предусмотрены на боковых стенках для удаления сажи и золы с конвективных поверхностей.

2.2. Развитая двухходовая конвективная часть – экономайзер не требуется

Конвективная поверхность нагрева выполнена из пакетов труб, расположенных в шахматном порядке. Такая компоновка создаёт турбулентность потока дымовых газов, что обеспечивает максимально интенсивный теплосъём. Гидравлическая схема организована по принципу противотока: теплоноситель движется навстречу горячим газам.

Благодаря этому дымовые газы глубоко охлаждаются до 180–200 °С, а КПД котла превышает 80%. Высокая эффективность конвективной части позволяет отказаться от установки отдельного экономайзера – устройства, которое обычно требуется для дожига и доохлаждения газов в менее совершенных конструкциях.

Преимущества для вас:

  • Упрощение обвязки котла – меньше узлов и соединений.
  • Снижение капитальных затрат – не нужно покупать экономайзер.
  • Отсутствие дополнительного аэродинамического сопротивления – можно использовать дымосос меньшей мощности.
  • Экономия топлива и тепла без усложнения котельной.

2.2. Колосниковая решётка с поворотными колосниками

  • Неподвижная решётка с поворотными колосниками: решётка набирается из отдельных колосников, установленных на колосниковых балках. Колосники соединены тягой с рычажным механизмом для их поворота.
  • Секции для очистки от шлака: решётка по ширине может состоять из одной или двух секций. Для облегчения очистки каждая секция по длине разделена на две группы с самостоятельными приводами. Это позволяет удалять шлак поочерёдно, не останавливая котёл.
  • Поворотные колосники: расположение поворотных колосников определяется вашим техническим заданием – возможные варианты впереди/в центре/в задней части топочной решетки в зависимости от планировки вашей котельной.
  • Альтернативное исполнение: вместо неповоротных плитчатых колосников может устанавливаться радиальная воздухораспределительная решётка (РВР) для работы на мелких фракциях.

2.3. Система заброса топлива

  • Пневмомеханический забрасыватель: топка оснащается забрасывателем ЗП 400, который состоит из корпуса, ротора и пластинчатого питателя. Ротор работает по схеме верхнего выброса.
  • Регулировка дальности заброса: осуществляется изменением частоты вращения ротора и угла наклона регулирующей плиты.
  • Предохранительная муфта: на ведущем валу питателя установлена муфта, которая срабатывает при заклинивании, предотвращая поломку.
  • Система подачи воздуха: дутьевой вентилятор подаёт воздух под решётку, количество регулируется шиберами. 

2.4. Гидравлическая схема и циркуляция

Котел работает с принудительной циркуляцией теплоносителя (сетевой насос). Многоходовая схема с перегородками в коллекторах обеспечивает:

  • Отсутствие застойных зон и локального перегрева металла.
  • Высокую турбулентность потока, препятствующую образованию накипи.
  • Равномерный прогрев трубной системы.

Подключение к системе отопления – через приварные фланцы или патрубки (расположение уточняется по проекту, возможно зеркальное исполнение).

3. Требования к качеству теплоносителя и водоподготовке

Для обеспечения безнакипного режима работы и заявленного срока службы (10+ лет) необходимо организовать водно-химический режим (ВХР) в соответствии с Правилами технической эксплуатации тепловых энергоустановок. На практике многие объекты используют водопроводную воду, что допустимо при её соответствии нормативам.

Рекомендация: перед подбором системы водоподготовки выполните химический анализ исходной воды. Для закрытых систем при использовании водопроводной воды, соответствующей СанПиН, сложная водоподготовка часто не требуется – достаточно периодической продувки котла.

Согласно СП 89.13330, ПТЭ ТЭ:

Требования к качеству сетевой воды КВм-2,5 ЗП-РПК до 115 °С с забрасывателем
Показатель Норма для закрытых систем
pH (кислотность) 8,5 – 10,5
Железо (Fe), мг/л не более 0,5
Растворенный кислород, мг/л не более 20 (обычно в водопроводной воде его мало)
Взвешенные вещества, мг/л не более 5
Нефтепродукты, мг/л не более 1,0
Карбонатный индекс (ИК) при 101–120 °С, (мг-экв/л)2
(при pH>10,0 ИК ≤ 0,1)
в зависимости от pH:
при pH ≤ 8,5 → ИК ≤ 2,0
при pH 8,51 – 8,8 → ИК ≤ 1,5
при pH 8,81 – 9,2 → ИК ≤ 1,2
при pH 9,21 – 10,0 → ИК ≤ 1,0

Если вода соответствует нормам теплосетей – можно использовать её без дорогостоящей ХВО, ограничившись продувкой котла. При сомнениях пришлите анализ нашим теплотехникам – поможем бесплатно.

4. Комплектация и опции поставки

Стандартный комплект поставки (два варианта исполнения):

  • Блок котла в обшивке и изоляции или блок котла без обшивки (под тяжёлую кирпичную обмуровку) – по выбору заказчика.
  • Полумеханическая топка ЗП-РПК (колосниковая решётка или топка ОУР с поворотными колосниками, механизм поворота).
  • Забрасыватель ЗП-400 с электродвигателем, редуктором, муфтой.
  • Дутьевой вентилятор.
  • Комплект запорной арматуры и КИП (затворы дисковые – 2 шт., вентили запорные – комплект, предохранительные клапаны – 2 шт., термометры с оправой – 4 шт., манометры с кранами – 4 шт.).
  • Чугунная топочная дверка, плита под забрасыватель.
  • Паспорт изделия, руководство по эксплуатации.

Дополнительное оборудование (подбирается по запросу):

  • Автоматика котла (щит управления, контроль температуры, давления, защита).
  • Дымосос.
  • Золоуловитель (циклон ЦН, БЦ, ЦБ) – при необходимости высокой степени очистки.
  • Насосная группа (сетевые и подпиточные насосы).
  • Транспортёры топливоподачи и шлакозолоудаления (скребковые или ленточные).
  • Газоходы и переходники по индивидуальному заказу.

5. Транспортировка и монтаж

Механический котел КВм-2,5 с забрасывателем и топкой ЗП-РПК поставляется двумя блоками в максимальной заводской готовности. Транспортировка – ж/д и автотранспорт закрытого типа с верхней загрузкой в горизонтальном положении, исключающем смещение и удары. Монтаж должен производиться специализированной организацией, имеющей допуск к оборудованию, работающему под давлением.

Порядок монтажа: установка топки на фундамент, крепление анкерными болтами → установка котельного блока на топку → крепление забрасывателя на фронтальную плиту → подключение по воде и газу → монтаж арматуры, КИП, вентилятора, газохода.

6. Заказ и консультации

Для запроса коммерческого предложения или покупки котла полу механического КВм-2,5 -95 ЗП-РПК направьте запрос с указанием:

  • Требуемая тепловая мощность (2,5 МВт).
  • Вид топлива (каменный/бурый уголь, влажность, зольность).
  • Желаемое исполнение топки (передний/средний/задний выгруз шлака).
  • Требования к автоматизации и золоудалению.

Контакты отдела продаж:

  • Тел.: +8-800-700-81-25
  • Email: heatexpert.ru@yandex.ru

7. Изготовление под заказ и индивидуальные доработки

Мы производим котлы с механической загрузкой КВм-2,5 с топкой ЗП-РПК как по типовым проектам, так и по техническому заданию заказчика.

Возможные доработки:

  • Зеркальное исполнение (расположение штуцеров и патрубков с противоположной стороны).
  • Изготовление чугунной топочной решетки с передним, средним или задним выгрузом шлака.
  • Изготовление топки ОУР - водоохлаждаемой беспровальной решетки с передним, средним или задним выгрузом шлака.
  • Изготовление котла и топки из цельнотянутой бесшовной трубы ГОСТ 8732 (34) или стали 09Г2С.
  • Дополнительные люки для обслуживания.

Гарантия 12 месяцев. Расчетный срок службы — 10 лет.

Комплект поставки котла КВм 2.5 с ЗП РПК

Цена водогрейного котла КВм 2.5 с ЗП РПК включает в себя котельный блок в изоляции, механический забрасываетль ЗП, топку с поворотными опрокидывающимися колосниками, вентили, затворы, манометры, термометры, вентилятор поддува и предохранительные клапаны. Ниже приведена подробная информация.

Дополнительное вспомогательное оборудование для работы котла КВм 2.5 с ЗП РПК

Для эффективной и надежной работы котла КВм 2.5 с ЗП РПК в вашей котельной вам потребуется дополнительное оборудование - автоматика ЩУК, дымосос, насос сетевой и подпиточный, золоуловитель (по желанию), транспортеры, газоходы и переходники для газового тракта, дымовая труба. Мы предлагаем рассмотреть типовые варианты комплектации.

В случае если у вас на объекте уже имеется насосное и тягодутьевое оборудование, мы можем проверить совместимость котла КВм 2.5 с ЗП РПК нашего производства и вашего оборудования.

Можем изготовить нестандартные узлы для выполнения быстрого монтажа котла - газоходы и узлы обвязки. 

Типовую схему монтажа котла вы можете посмотреть во вкладке схемы подключения и монтаж.

Котел с забрасывателем автоматика
Цена: 340 000 ₽
ДН 8 дымосос
Цена: 217 100 ₽
ЗУ 2,15 золоуловитель
Цена: 95 000 ₽
ДН 9 дымосос
Цена: 231 400 ₽
Котла газоход
Цена: по запросу
Подпиточный насос
Цена: по запросу
Сетевой насос
Цена: по запросу

Схема подключения и монтажа котла КВм 2.5 с ЗП РПК

Монтаж водогрейного котла КВм 2.5 с ЗП РПК и вспомогательного оборудования в котельной должно производиться в соответствии с проектом и учетом требований СП 89.13330. 2016 «Котельные установки. Актуализированная редакция СНиП II-35-76» и «Правил устройства и безопасной эксплуатации паровых котлов с давлением пара не более 0,07 МПа (0,7 кгс/см2), водогрейных котлов и водоподогревателей с температурой нагрева воды не выше 388 К (115 С). Правильный монтаж котла – залог его надежной и долгой работы.

Чтобы правильно подключить котел КВм 2.5 с ЗП РПК в котельной необходимо оставить проемы для обслуживания оборудования во время эксплуатации. На представленной здесь схеме указаны их минимальные размеры. Кроме того, в данной примерной схеме монтажа водогрейных котлов и оборудования указан перечень минимально необходимого вспомогательного оборудования для правильной работы котла.

К вспомогательному оборудованию при подключении промышленного водогрейного котла КВм с ЗП РПК относят - щит управления котлом, насос циркуляционный, насос подпиточной воды, бак запаса воды, расширительный мембранный бак, транспортер, дымовую трубу, систему газоходов и дымосос, золоуловитель (по желанию).

В случае если подпиточная вода не соответствует по своим характеристикам требованиям к питательной воде, необходимо предусмотреть систему водоподготовки котловой воды.

Для котельных 1 категории, являющиеся единственным источником тепла системы теплоснабжения и обеспечивающие потребителей первой категории, не имеющих индивидуальных резервных источников тепла, необходимо предусмотреть полное резервирование оборудования – подключение 2 (двух) котлов, насосов, ТДМ. Пунктиром обозначено оборудование для резервирования.

Для котельных 2 категории, включающие в себя промышленные и производственные котельные резервирование нужно предусматривать по необходимости.

Схема подключения и монтажа водогрейного промышленного {{parts_subject_r}}
Схема подключения и монтажа котла КВм 2.5 с ЗП РПК

Сертификат и качество котла КВм 2.5 с ЗП РПК HeatExpert

Водогрейные котлы производства Котельный завод "РЭП" соответствуют строгим стандартам качества и безопасности. Завод производит котлы в соответствии с требованиями ГОСТ 30735-3001 по Техническим Условиям завода.

Котлы имеют все необходимые сертификаты соответствия Техническим регламентам Таможенного союза:

  • ТР ТС 010/2011 «О безопасности машин и оборудования»
  • ТР ТС 032/2013 - «О безопасности оборудования, работающего под избыточным давлением».

Водогрейный котел КВм 2.5 с ЗП РПК имеет гарантийный срок 12 месяцев и срок работы при соблюдении правил монтажа и эксплуатации оборудования 10 лет.

Сертификат на водогрейные котлы твердотопливные и жидкотопливные
Сертификат на твердотопливные и жидкотопливные водогрейные котлы

Подберите котел для вашего объекта

Тип здания
Регион
Населенный пункт
Вид топлива
Наружный объем здания (м3)
Объем подвала при наличии (м3)

Характеристики
Описание
Комплект поставки
Потребуются
Схема подключения
Сертификаты
Подбор котла

Похожие товары

Котел HeatExpert КВм с РПК 2.5 МВт / 2500 кВт
Вид топки Ручная, РПК Топливо Твердое, Уголь Максимальная тепловая мощность 2.5 МВт Отапливаемая площадь от 20900 до 27400 м²
Цена 2 060 100 ₽
Котел HeatExpert КВм с ТШПМ 2.5 МВт / 2500 кВт
Вид топки Механическая, ТШПМ Топливо Твердое, Уголь Максимальная тепловая мощность 2.5 МВт Отапливаемая площадь от 19300 до 27500 м²
Цена 2 179 000 ₽
Котел КВм с ТЛПХ 2.5
Вид топки Механическая, ТЛПХ Топливо Твердое, Уголь Максимальная тепловая мощность 2.5 МВт Отапливаемая площадь от 20900 до 27400 м²
Цена 6 702 000 ₽
Котел HeatExpert КВм с ЗП РПК 2.0 МВт / 2200 кВт
Вид топки Механическая, РПК Топливо Твердое, Уголь Максимальная тепловая мощность 2.2 МВт Отапливаемая площадь от 17000 до 24200 м²
Цена 2 200 050 ₽
Котел HeatExpert КВм с ЗП РПК 3.0 МВт / 3000 кВт
Вид топки Механическая, РПК Топливо Твердое, Уголь Максимальная тепловая мощность 3 МВт Отапливаемая площадь от 23100 до 33000 м²
Цена 2 900 000 ₽

Производим промышленные водогрейные и паровые котлы с 2003 г.

Завод осуществляет производство, проектирование и монтаж котельного оборудования для производственных и отопительных котельных.

Котельный завод