Котел КВр(м) 0.3 с топкой РПК

В наличии
Только безнал
Можно в лизинг
Версия для печати
Вид топки: Ручная, РПК
Максимальная тепловая мощность: 0.3 МВт
Топливо: Твердое, Уголь
Отапливаемая площадь: от 2300 до 3300 м²
Все характеристики

Водогрейный твердотопливный котел HeatExpert КВр(м)-0,3 с наклонными колосниками РПК, мощностью 0,3 МВт (300 кВт) на каменном и буром угле с ручной подачей топлива и механизированным золошлакоудалением.

Подробное описание

Преимущества котла КВр(м)‑0,3 МВт с топкой РПК (поворотные колосники)

Ручная загрузка угля – просто и привычно.

Кочегар загружает топливо через топочную дверцу вручную. Толщина слоя регулируется визуально – гибкое управление мощностью без сложной автоматики. Никаких забрасывателей и транспортёров, минимум механизмов.

Поворотные колосники – лёгкое удаление шлака.

Секции колосников поворачиваются с помощью рычажного механизма, сбрасывая шлак в канал золоудаления. Очистка топки занимает несколько минут и не требует остановки котла (секции очищаются поочерёдно).

Выбор схемы выгрузки шлака – под вашу котельную.

Топка РПК может быть выполнена с передним, средним или задним выгрузом шлака. Выбирайте вариант, который удобно вписать в существующую систему шлакозолоудаления.

Газоплотная топочная камера – безопасность и экономия.

Плавниковое оребрение труб исключает присосы холодного воздуха и выбивание дыма в котельный зал. Стабильное горение = меньше топлива и спокойствие персонала.

Конвективная часть – экономайзер не требуется.

Шахматное расположение труб и принцип противотока обеспечивают глубокое охлаждение дымовых газов до 180–200 °С и КПД >80%. Высокая эффективность исключает установку отдельного экономайзера – снижаются затраты и сопротивление газового тракта.

Турбулентный поток теплоносителя.

Турбулентный высокоскоростной режим теплоносителя препятствует выпадению взвешенных частиц и образованию накипи. Многоходовая гидравлика исключает образование застойных зон и локальный перегрева трубной системы.

Быстрый выход на режим и запас мощности.

Выход на номинальную мощность – 2–4 часа. Запас по мощности 15% сверх номинала – справится с пиковыми нагрузками в морозы.

Адаптация под любой проект.

Возможно зеркальное исполнение входных патрубков, расположение поворотных колосников впереди/в центре/в задней части топочной решетки, нестандартные патрубки, установка дополнительных дверок, изготовление из стали 09Г2С или бесшовной трубы ГОСТ 8732. Мы подстроим котел под ваши технические условия.

Гарантия 12 месяцев. Расчетный срок службы — 10 лет.

Цена с НДС по запросу
Уточнить цену с доставкой до вашего города
Оглавление
Характеристики
Описание
Комплект поставки
Потребуются
Схема подключения
Сертификаты
Подбор котла

Технические характеристики котла КВр(м) 0.3 с РПК

Подобрать другую модель по вашим ТХ
Бренд: HeatExpert
Тип: Котел КВм
Марка: Котел HeatExpert 0.3 с РПК
Вид: Водогрейный
Тип отопительного котла: Твердотопливный
Вид топки: Ручная, РПК
Максимальная тепловая мощность: 0.3 МВт
Максимальная тепловая мощность: 300 кВт
Максимальная тепловая мощность: 0.26 Гкал
Диапазон регулирования мощности: 40-100 %
Диапазон регулирования мощности: 120-300 кВт
Топливо: Твердое, Уголь
Низшая теплота сгорания проектного топлива: 5230 кКал/кг
Фракционный состав топлива: Содержание мелочи (0-6 мм) не более 50%; максимальный размер куска не более 100 мм
Влажность топлива: 30 %
КПД котла на УГЛЕ, не менее: 80 %
Расход УГЛЯ при максимальной нагрузке котла: 60 кг/ч
Расход УГЛЯ среднечасовой за отопительный сезон: 34 кг/ч
Расход условного топлива при максимальной нагрузке котла: 45 кг/ч
Максимальная температура воды на выходе из котла: 115 °C
Минимальная температура воды на входе в котел: 55 °C
Давление теплоносителя: 0.3-0.6 (3-6) МПа (кгс/см²)
Номинальный расход теплоносителя: 10 м³/ч
Расход теплоносителя через котел min-max: 8-13 м³/ч
Водяной объем котла: 240 л
Гидравлическое сопротивление при номинальном расходе, не более: 0.07 (0.7) МПа (кгс/cм²)
Аэродинамическое сопротивление: 134 (13.4) Па (мм. вод. ст.)
Разряжение в топочной камере: 20-40 (2-4) Па (мм. вод. ст.)
Размер топочной камеры: длина*ширина*высота: 1010х660х1370 мм
Активная площадь решетки горения: 0.67 м²
Объем топочной камеры: 0.91 м³
Тяга: Уравновешенная
Объем уходящих газов: 1250 м³/ч
Температура уходящих газов, не более: 250 °C
Присоединительные размеры по водяному тракту: 50 Ду
Присоединительные размеры газохода уходящих газов, ширина*высота / сечение: 390х200 / 0.08 мм/м²
Габаритные размеры корпуса котла (без дренажей, амбразуры, топочного устройства, входа выхода), длина*ширина*высота: 1790х900х1925 мм
Габаритные размеры котла, длина*ширина*высота: 2050х1300х2085 мм
Масса: 1150 кг
Конструкция котла: Водотрубная
Количество контуров теплоносителя: Одноконтурный
Размещение: Напольный
Тип камеры сгорания: Открытый
Управление: Электронное
Принцип работы твердотопливного котла: Классический
Энергонезависимый: Нет
Тип питания: Трехфазное
Встроенный циркуляционный насос: Нет
Встроенный расширительный бак: Нет
Энергоэффективность: Высокая
Срок службы: 10 лет
Страна производства: Россия
Регистрационный номер Минпромторга: 1
Особенность: С удобным выгрузом шлака
Отапливаемая площадь: от 2300 до 3300 м²
Отапливаемый объем: от 6900 до 10000 м³

Водогрейный котел КВр(м)-0,3 МВт с топкой РПК (поворотные колосники) для каменного и бурого угля

1. Назначение и область применения котла КВр(м)-0,3 с топкой РПК

Котел водогрейный КВр(м)-0,3 (0,3 МВт) с топкой РПК предназначен для получения горячей воды с температурой до 115 °С и рабочим давлением 0,3–0,6 МПа (3,0–6,0 кгс/см²) в системах отопления, вентиляции и горячего водоснабжения крупных производственных, коммунальных и социальных объектов. Оборудование рассчитано на сжигание каменного и бурого угля.

Котёл мощностью 0,3 МВт с поворотными колосниками (РПК) – это модель с ручной загрузкой топлива и механизированным удалением шлака. Применяется в котельных, где требуется облегчить труд кочегара при очистке топки, но автоматическая подача угля не нужна. Используется для теплоснабжения промышленных предприятий, жилых кварталов, административных зданий, школ, больниц.

Базовые параметры котла КВр(м)-0,3-95 с топкой РПК:

  • Тепловая мощность: 0,3 МВт (300 кВт).
  • Отапливаемая площадь (ориентировочно): до 3 300 м² (зависит от теплопотерь).
  • Топливо: каменный и бурый уголь (фракция до 40 мм, влажность до 40%, зольность до 35%).
  • Тип загрузки: ручная (кочегар).
  • Тип топки: РПК (решётка с поворотными колосниками).
  • Конструкция: стальной, водотрубный, горизонтальный.

2. Конструктивные особенности и характеристики котла КВр(м)-0,3-115 с топкой РПК

Котел выполнен двухблочным: котельный блок (сварная конструкция из труб сталь 20, газоплотная топочная камера, конвективная часть) и топка РПК (колосниковая решётка с поворотными секциями).

2.1. Котельный блок

  • Газоплотная топочная камера: выполнена из труб сталь 20 с плавниковым оребрением (межтрубное пространство заварено). Полностью исключены присосы воздуха и прорыв дыма в котельный зал.
  • Конвективная часть (двухходовая): пакеты труб в шахматном порядке для интенсивного теплосъема. Принцип противотока – глубокое охлаждение дымовых газов до 180–200 °С, КПД более 80%.
  • Обмуровка: облегчённая из плит ПТЭ (базальтовое волокно) с обшивкой из стального листа.
  • Люки для очистки: предусмотрены на боковых стенках для удаления сажи и золы с конвективных поверхностей.

2.2. Развитая двухходовая конвективная часть – экономайзер не требуется

Конвективная поверхность нагрева выполнена из пакетов труб, расположенных в шахматном порядке. Такая компоновка создаёт турбулентность потока дымовых газов, что обеспечивает максимально интенсивный теплосъём. Гидравлическая схема организована по принципу противотока: теплоноситель движется навстречу горячим газам.

Благодаря этому дымовые газы глубоко охлаждаются до 180–200 °С, а КПД котла превышает 80%. Высокая эффективность конвективной части позволяет отказаться от установки отдельного экономайзера – устройства, которое обычно требуется для дожига и доохлаждения газов в менее совершенных конструкциях.

Преимущества для вас:

  • Упрощение обвязки котла – меньше узлов и соединений.
  • Снижение капитальных затрат – не нужно покупать экономайзер.
  • Отсутствие дополнительного аэродинамического сопротивления – можно использовать дымосос меньшей мощности.
  • Экономия топлива и тепла без усложнения котельной.

2.3. Колосниковая решётка с поворотными колосниками (РПК)

  • Неподвижная решётка с поворотными колосниками: решётка набирается из отдельных колосников, установленных на колосниковых балках. Колосники соединены тягой с рычажным механизмом для их поворота.
  • Секции для очистки от шлака: решётка по ширине может состоять из одной или двух секций. Для облегчения очистки каждая секция по длине разделена на две группы с самостоятельными приводами. Это позволяет удалять шлак поочерёдно, не останавливая котёл.
  • Поворотные колосники: расположение поворотных колосников определяется вашим техническим заданием – возможные варианты впереди/в центре/в задней части топочной решетки в зависимости от планировки вашей котельной.
  • Альтернативное исполнение: вместо неповоротных плитчатых колосников может устанавливаться радиальная воздухораспределительная решётка (РВР) для работы на мелких фракциях.

2.4. Ручная загрузка топлива

  • Уголь загружается кочегаром через топочную дверцу вручную, равномерным слоем на колосниковую решётку.
  • Толщина слоя регулируется визуально, что позволяет гибко управлять мощностью котла.
  • Шуровка и перемешивание топлива в процессе горения также выполняются вручную (кочергой).

2.5. Система подачи воздуха

  • Дутьевой вентилятор подаёт воздух под колосниковую решётку. Количество воздуха регулируется шиберами.
  • Зональный поддув (по зонам решётки) позволяет эффективно сжигать топливо с разной зольностью и влажностью.

2.6. Гидравлическая схема и циркуляция

Котел работает с принудительной циркуляцией теплоносителя (сетевой насос). Многоходовая схема с перегородками в коллекторах обеспечивает:

  • Отсутствие застойных зон и локального перегрева металла.
  • Высокую турбулентность потока, препятствующую образованию накипи.
  • Равномерный прогрев трубной системы.

Подключение к системе отопления – через приварные фланцы или патрубки (расположение уточняется по проекту, возможно зеркальное исполнение).

3. Требования к качеству теплоносителя и водоподготовке

Для обеспечения безнакипного режима работы и заявленного срока службы (10+ лет) необходимо организовать водно-химический режим (ВХР) в соответствии с Правилами технической эксплуатации тепловых энергоустановок. На практике многие объекты используют водопроводную воду, что допустимо при её соответствии нормативам.

Рекомендация: перед подбором системы водоподготовки выполните химический анализ исходной воды. Для закрытых систем при использовании водопроводной воды, соответствующей СанПиН, сложная водоподготовка часто не требуется – достаточно периодической продувки котла.

Согласно СП 89.13330, ПТЭ ТЭ:

Требования к качеству сетевой воды для котла КВр(м)-0,3 РПК (до 115 °С)
Показатель Норма для закрытых систем
pH (кислотность) 8,5 – 10,5
Железо (Fe), мг/л не более 0,5
Растворенный кислород, мг/л не более 20 (обычно в водопроводной воде его мало)
Взвешенные вещества, мг/л не более 5
Нефтепродукты, мг/л не более 1,0
Карбонатный индекс (ИК) при 101–120 °С, (мг-экв/л)2
(при pH>10,0 ИК ≤ 0,1)
в зависимости от pH:
при pH ≤ 8,5 → ИК ≤ 2,0
при pH 8,51 – 8,8 → ИК ≤ 1,5
при pH 8,81 – 9,2 → ИК ≤ 1,2
при pH 9,21 – 10,0 → ИК ≤ 1,0

Если вода соответствует нормам теплосетей – можно использовать её без дорогостоящей ХВО, ограничившись продувкой котла. При сомнениях пришлите анализ нашим теплотехникам – поможем бесплатно.

4. Комплектация и опции поставки

Стандартный комплект поставки (два варианта исполнения):

  • Блок котла в обшивке и изоляции или блок котла без обшивки (под тяжёлую кирпичную обмуровку) – по выбору заказчика.
  • Топка РПК (колосниковая решётка с поворотными колосниками, механизм поворота).
  • Дутьевой вентилятор.
  • Комплект запорной арматуры и КИП (затворы дисковые – 2 шт., вентили запорные – комплект, предохранительные клапаны – 2 шт., термометры с оправой – 4 шт., манометры с кранами – 4 шт.).
  • Чугунная топочная дверка.
  • Паспорт изделия, руководство по эксплуатации.

Дополнительное оборудование (подбирается по запросу):

  • Автоматика котла (щит управления, контроль температуры, давления, защита).
  • Дымосос.
  • Золоуловитель (циклон ЦН, БЦ, ЦБ) – при необходимости высокой степени очистки.
  • Насосная группа (сетевые и подпиточные насосы).
  • Транспортёр шлакозолоудаления (скребковый или ленточный) – для автоматизации удаления шлака.
  • Газоходы и переходники по индивидуальному заказу.

5. Транспортировка и монтаж

Котёл КВр(м)-0,3 с топкой РПК поставляется двумя блоками в максимальной заводской готовности. Транспортировка – ж/д и автотранспорт закрытого типа с верхней загрузкой в горизонтальном положении, исключающем смещение и удары. Монтаж должен производиться специализированной организацией, имеющей допуск к оборудованию, работающему под давлением.

Порядок монтажа: установка топки на фундамент, крепление анкерными болтами → установка котельного блока на топку → подключение по воде и газу → монтаж арматуры, КИП, вентилятора, газохода.

6. Заказ и консультации

Для запроса коммерческого предложения или покупки котла КВр(м)-0,3 с топкой РПК направьте запрос с указанием:

  • Требуемая тепловая мощность (0,3 МВт).
  • Вид топлива (каменный/бурый уголь, влажность, зольность).
  • Желаемое исполнение топки (передний/средний/задний выгруз шлака).
  • Требования к автоматизации и золоудалению.

Контакты отдела продаж:

  • Тел.: +8-800-700-81-25
  • Email: heatexpert.ru@yandex.ru

7. Изготовление под заказ и индивидуальные доработки

Мы производим котлы КВр(м)-0,3 с топкой РПК как по типовым проектам, так и по техническому заданию заказчика.

Возможные доработки:

  • Зеркальное исполнение (расположение штуцеров и патрубков с противоположной стороны).
  • Изготовление чугунной топочной решетки с передним, средним или задним выгрузом шлака.
  • Изготовление топки ОУР (водоохлаждаемая беспровальная решетка) с передним, средним или задним выгрузом шлака.
  • Изготовление котла и топки из цельнотянутой бесшовной трубы ГОСТ 8732 (34) или стали 09Г2С.
  • Дополнительные люки для обслуживания.

Гарантия 12 месяцев. Расчетный срок службы — 10 лет.

Комплект поставки котла КВр(м) 0.3 с РПК

Цена водогрейного котла КВр(м) 0.3 с РПК включает в себя котельный блок в изоляции, топку с поворотными опрокидывающимися колосниками, вентили, затворы, манометры, термометры, вентилятор поддува и предохранительные клапаны. Ниже приведена подробная информация.

Дополнительное вспомогательное оборудование для работы котла КВр(м) 0.3 с РПК

Для эффективной и надежной работы котла КВр(м) 0.3 с РПК в вашей котельной вам потребуется дополнительное оборудование - автоматика ЩУК, дымосос, насос сетевой и подпиточный, золоуловитель (по желанию), транспортеры, газоходы и переходники для газового тракта, дымовая труба. Мы предлагаем рассмотреть типовые варианты комплектации.

В случае если у вас на объекте уже имеется насосное и тягодутьевое оборудование, мы можем проверить совместимость котла КВр(м) 0.3 с РПК нашего производства и вашего оборудования.

Можем изготовить нестандартные узлы для выполнения быстрого монтажа котла - газоходы и узлы обвязки. 

Типовую схему монтажа котла вы можете посмотреть во вкладке схемы подключения и монтаж.

Нет фото
Цена: 185 000 ₽
ДН 3.5 дымосос
Цена: 55 900 ₽
ЗУ 0,4 золоуловитель
Цена: 43 000 ₽
ДН 6.3 дымосос
Цена: 101 400 ₽
Котла газоход
Цена: по запросу
Подпиточный насос
Цена: по запросу
Сетевой насос
Цена: по запросу

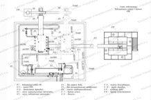
Схема подключения и монтажа котла КВр(м) 0.3 с РПК

Монтаж водогрейного котла КВр(м) 0.3 с РПК и вспомогательного оборудования в котельной должно производиться в соответствии с проектом и учетом требований СП 89.13330. 2016 «Котельные установки. Актуализированная редакция СНиП II-35-76» и «Правил устройства и безопасной эксплуатации паровых котлов с давлением пара не более 0,07 МПа (0,7 кгс/см2), водогрейных котлов и водоподогревателей с температурой нагрева воды не выше 388 К (115 С). Правильный монтаж котла – залог его надежной и долгой работы.

Чтобы правильно подключить котел КВр(м) 0.3 с топкой РПК в котельной необходимо оставить проемы для обслуживания оборудования во время эксплуатации. На представленной здесь схеме указаны их минимальные размеры. Кроме того, в данной примерной схеме монтажа водогрейных котлов и оборудования указан перечень минимально необходимого вспомогательного оборудования для правильной работы котла.

К вспомогательному оборудованию при подключении промышленного водогрейного котла КВм с РПК относят - щит управления котлом, насос циркуляционный, насос подпиточной воды, бак запаса воды, расширительный мембранный бак, транспортеры, дымовую трубу, систему газоходов и дымосос, золоуловитель (по желанию).

В случае если подпиточная вода не соответствует по своим характеристикам требованиям к питательной воде, необходимо предусмотреть систему водоподготовки котловой воды.

Для котельных 1 категории, являющиеся единственным источником тепла системы теплоснабжения и обеспечивающие потребителей первой категории, не имеющих индивидуальных резервных источников тепла, необходимо предусмотреть полное резервирование оборудования – подключение 2 (двух) котлов, насосов, ТДМ. Пунктиром обозначено оборудование для резервирования.

Для котельных 2 категории, включающие в себя промышленные и производственные котельные резервирование нужно предусматривать по необходимости.

Схема подключения и монтажа водогрейного промышленного {{parts_subject_r}}
Схема подключения и монтажа котла КВр(м) 0.3 с РПК

Сертификат и качество котла КВр(м) 0.3 с РПК HeatExpert

Водогрейные котлы производства Котельный завод "РЭП" соответствуют строгим стандартам качества и безопасности. Завод производит котлы в соответствии с требованиями ГОСТ 30735-3001 по Техническим Условиям завода.

Котлы имеют все необходимые сертификаты соответствия Техническим регламентам Таможенного союза:

  • ТР ТС 010/2011 «О безопасности машин и оборудования»
  • ТР ТС 032/2013 - «О безопасности оборудования, работающего под избыточным давлением».

Водогрейный котел КВр(м) 0.3 с топкой РПК имеет гарантийный срок 12 месяцев и срок работы при соблюдении правил монтажа и эксплуатации оборудования 10 лет.

Сертификат на водогрейные котлы твердотопливные и жидкотопливные
Сертификат на твердотопливные и жидкотопливные водогрейные котлы

Подберите котел для вашего объекта

Тип здания
Регион
Населенный пункт
Вид топлива
Наружный объем здания (м3)
Объем подвала при наличии (м3)

Характеристики
Описание
Комплект поставки
Потребуются
Схема подключения
Сертификаты
Подбор котла

Похожие товары

КВр котел 0.3 МВт / 300 кВт HeatExpert
Вид топки Ручная, Колосники Топливо Твердое, Уголь Максимальная тепловая мощность 0.3 МВт Отапливаемая площадь от 2300 до 3300 м²
Цена 457 000 ₽
Котел 0.3 МВт / 300 кВт с ОУР HeatExpert
Вид топки Ручная, ОУР Топливо Твердое, Уголь Максимальная тепловая мощность 0.3 МВт Отапливаемая площадь от 2300 до 3300 м²
Цена 436 000 ₽
Котел HeatExpert без дымососа 0.3 МВт
Вид топки Ручная, Колосники Топливо Твердое, Уголь Максимальная тепловая мощность 0.3 МВт Отапливаемая площадь от 2300 до 3300 м²
Цена 395 000 ₽
Котел HeatExpert 0.3 МВт на дровах
Вид топки Ручная, Колосники, ОУР Топливо Твердое, Дрова Максимальная тепловая мощность 0.3 МВт Отапливаемая площадь от 2350 до 3300 м²
Цена 458 000 ₽
Котел HeatExpert уголь дрова 0.3 МВт / 300 кВт
Вид топки Ручная, Колосники, ОУР Топливо Твердое, Уголь, Дрова Максимальная тепловая мощность 0.3 МВт Отапливаемая площадь от 2300 до 3300 м²
Цена 419 000 ₽
Котел HeatExpert КВм с РПК 0.35 МВт / 350 кВт
Вид топки Ручная, РПК Топливо Твердое, Уголь Максимальная тепловая мощность 0.35 МВт Отапливаемая площадь от 2600 до 3900 м²
Цена 670 000 ₽
Котел HeatExpert КВм с РПК 0.4 МВт / 400 кВт
Вид топки Ручная, РПК Топливо Твердое, Уголь Максимальная тепловая мощность 0.4 МВт Отапливаемая площадь от 3000 до 4300 м²
Цена 683 000 ₽

Производим промышленные водогрейные и паровые котлы с 2003 г.

Завод осуществляет производство, проектирование и монтаж котельного оборудования для производственных и отопительных котельных.

Котельный завод